變頻器在使用的時候,為了保證安全穩定運行,需要注意以下幾個問題。
1、通用變頻器必須可靠接地,保證安全運行并有效抑制電磁于擾。干擾如下圖:

2、通用變頻器不宜做耐壓實驗及絕緣電阻實驗。做時應當使用500V絕緣電阻表測量,盡可能減少搖測次數。絕緣前應斷開全部的外接主電源與控制線路并短接主電路;對地絕緣應保證在5兆歐以上。具體如下圖:

3、通用變頻器控制電動機時,必須保證電動機具有良好的通風條件,必要時采取外部通風冷卻措施。
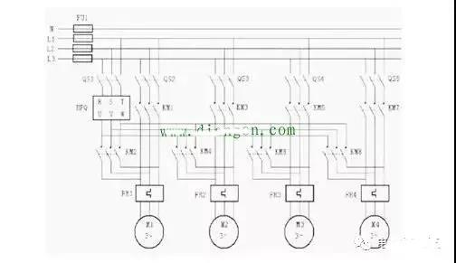
4、用一臺通用變頻器帶多臺電機時除了使電動機運行的總電流小于通用變頻器的額定電流外,還至少要計算一臺電動機起動電流的影響,以避免變頻器過電流跳閘。一拖多如下圖:

5、通用變頻器輸出側不可接電容補償裝置,以免通用變頻器過電流保護動作跳閘,甚至損壞通用變頻器。
6、由通用變頻器驅動電動機的運行與停止,不能使用低壓斷路器或交流接觸器直接操作,應通過通用變頻器的控制端子來操作,否則會造成通用變頻器失控,引起事故。
7、避免通用變頻器驅動與其容量不符的電動機。電動機容量偏小會影響有效轉矩輸出,容量偏大則諧波容量會加大。
8、被驅動的電動機另有制動器時,通用變頻器應工作于自由停機方式,且制動器的動作信號須在變頻器發停車指令后才能發出。
9、通用變頻器用于驅動防爆電動機時,由于變頻器沒有防爆性能,應將變頻器置于危險場所之外。
10、通用變頻器用于驅動齒輪減速機時,使用范圍受到齒輪轉動部分潤滑方式的制約。潤滑油潤滑時,在低速范圍內沒有限制;在超過額定轉速以上的高速范圍內,有可能發生潤滑油欠供的情況,因此,要考慮最高轉速容許值。
11、應特別注意在使用變頻器前仔細閱讀使用說明書。變頻器的輸入輸出主電不能接反,也不能把“COM”與“GND”接混。應特別注意:在中性點不接地電網(IT系統、浮地電網)中也不能使用RFI濾波器,否則電源可能通過濾波器電容對地短路,從而可能產生危險或導致損壞變頻器。
12、試運行時,應先空載運行一次,然后帶輕載運行,最后再帶滿載試運行。
13、通用變頻器運行過程中,可以從設備的外部目視檢查運行狀況有無異常,通過操作面板查閱通用變頻器的運行參數,以便及時發現通用變頻器及電動機問題。
14、應定期對通用變頻器進行清掃、吹灰,保持其內部的清潔及風道的暢通。
15、保持變頻器周圍環境清潔、干燥,不要在通用變頻器附近放置無關物品。
16、安裝和維護變頻器后,要認真檢查有無遺漏的螺釘及導線頭等,防止小金屬物品掉入變頻器內部造成內部電路短路故障。

